Sabtu, 26 November 2016

Tipologi Gedung Pemerintah Metropolitan Tokyo

BANGUNAN KANTOR PEMERINTAH

A.  PENGERTIAN

1.  BANGUNAN GEDUNG

Yang dimaksud dengan bangunan gedung adalah wujud fisik hasil pekerjaan konstruksi yang menyatu dengan tempat dan kedudukannya, sebagian atau seluruhnya berada diatas dan/atau di dalam tanah dan/atau air, yang berfungsi sebagai tempat manusia melakukan kegiatan. baik untuk hunian atau tempat tinggal, kegiatan keagamaan, kegiatan usaha ,kegiatan sosial,budaya,maupun kegiatan khusus.

2.      BANGUNAN GEDUNG NEGARA

Bangunan Gedung Negara adalah bangunan gedung untuk keperluan dinas yang menjadi/akan menjadi kekayaan milik Negara dan diadakan dengan sumber pembiayaan yang berasal dari dana APBD ,dan/atau perolehan lainnya yang sah, antara lain seperti: gedung kantor,gedung sekolah, gedung rumah sakit, gudang, rumah Negara, dan lain-lain.

  1. KLASIFIKASI BANGUNAN GEDUNG NEGARA BERDASARKAN TINGKAT KOMPLEKSITAS MELIPUTI :

1.      BANGUNAN SEDERHANA

Klasifikasi bangunan sederhana adalah bangunan gedung Negara dengan karakter sederhana serta memiliki kompleksitas dan teknologi sederhana. masa penjaminan kegagalan bangunannya adalah selama 10 (sepuluh) tahun.

Yang termasuk klasifikasi bangunan sederhana ,antara lain:

§     gedung kantor yang sudah ada disain prototigpenya, atau bangunan gedung kantor

 dengan jumlah lantai s.d 2 lantai dengan luas sampai dengan 500 m2;
§     bangunan rumah dinas tipe C , D, dan E yang bertingkat;

§     gedung pelayanan kesehatan, puskesmas;

§     gedung pendidikan tingkat dasar dan /atau lanjutan dengan jumlah s.d 2 lantai.

2.      BANGUNAN TIDAK SEDERHANA

Klasifikasi bangunan tidak sederhana adalah bangunan gedung Negara dengan karakter tidak sederhana serta memiliki kompleksitas dan/atau teknologi tidak sederhana. masa penjamin kegagalan bangunannya adalah selama paling singkat 10 (sepuluh) tahun.

Yang termasuk klasifikasi bangunan Tidak Sederhana,antara lain:

§   Gedung kantor yang belum ada disain prototipenya, atau gedung kantor dengan luas di atas dari 500 m2, atau gedung kantor bertingkat lebih dari 2 lantai;

§    Bangunan rumah dinas tipe A dan B; atau rumah dinas C, d, dan E yang bertingkat lebih dari 2 lantai,rumah Negara yang berbentuk rumah susun;
§     Gedung Rumah Sakit Klas A , B , C, dan D;

§  Gedung pendidikan tinggi universitas/akademi; atau gedung pendidikan dasar/lanjutan bertingkat lebih dari 2 lantai.

3.      BANGUNAN KHUSUS

Klasifikasi bangunan khusus adalah bangunan gedung negara yang memiliki penggunaan dan persyaratan khusus, yang dalam perencanaan sederhana serta memiliki kompleksitas dan/atau teknologi tidak sederhana.


Masa penjamin kegagalan bangunannya adalah selama paling singkat 10 (sepuluh) tahun.

Yang termasuk klasifikasi bangunan Khusus ,antara lain:
§          istana negara dan rumah jabatan presiden dan wakil presiden;

§          wisma Negara;

§          gedung instalasi nuklir;

§          gedung instalasi pertahanan,bangunan POLRI dengan penggunaan persyaratan

      khusus;

§          gedung laboratorium;

§          gedung terminal udara/laut/darat;

§          stasiun kereta api;

§          stadion olah raga;

§          rumah tahanan;

§          gudang benda berbahaya;

§          gedung bersifat monumental;dan

§          gedung perwakilan negara R.I di luar negeri.







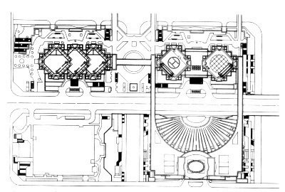
Karir arsitek Jepang Kenzo Tange memiliki anomali penasaran: ia menerima komisi yang sama dua kali. Pada tahun 1952, pada tahap awal karirnya, Tange merancang gedung administrasi di Oedo, Tokyo , pemerintah metropolitan kota. Lebih dari tiga puluh tahun kemudian, ketika pemerintah pindah ke Shinjuku, Tokyo , ia kembali memenangkan komisi untuk merancang bangunan administrasi. Selesai pada tahun 1991, ini akan menjadi salah satu yang terakhir, dan paling ambisius, proyek. Inkarnasi kedua sekarang mendominasi cakrawala kota, desain yang sangat khas menjamin itu status tengara. Dijuluki Tocho (singkatan dari nama Jepang nya Tōkyō-to Chōsha), referensi arsitektur untuk tradisi dan modernitas bertindak sebagai metafora visual untuk kota eklektik di mana penduduknya memerintah.



Meskipun biasanya disebut sebagai bangunan tunggal, Tocho akan lebih tepat disebut sebagai sebuah kompleks yang terdiri dari tiga struktur. Meskipun terlihat berbeda dan individual bernama, semua tiga bangunan dalam kompleks dihubungkan oleh rute pejalan kaki. No.1 Building adalah yang tertinggi dari tiga; struktur utama berdiri tiga puluh empat cerita tinggi tetapi menara kembar melambung ke empat puluh delapan cerita, menjadikannya bangunan tertinggi di Tokyo pada saat pembangunannya. Dibalut panel beton pracetak, façade yang inset dengan granit terang dan gelap untuk menciptakan berbagai pola geometris.
Pada dasarnya, façade No.1 Building membentuk wajah belaka yang menjadi semakin diartikulasikan sebagai dua menara naik. Komposisi yang tidak teratur ini menambah daya tarik visual dan mencegah bangunan muncul monolitik, meskipun ketinggiannya. permukaan yang diartikulasikan juga melakukan fungsi praktis dengan mengganggu angin kencang yang prasmanan bangunan pada titik tertinggi. Surut guntingan di puncak-puncak menara membuat bingkai untuk koleksi piring satelit, mengubah estetis tidak menarik-meskipun diperlukan-elemen dalam fitur sengaja dekoratif.



Di sebelah selatan No.1 Building berdiri No.2 Building. strukturnya terdiri dari tiga menara saling meningkatkan ketinggian, yang tertinggi dari yang berdiri di tiga puluh empat cerita - tingkat dengan struktur utama mitranya. Sekali lagi, tidak ada usaha untuk menyembunyikan elemen arsitektur kurang menarik, dengan banyak layanan bangunan mencolok ditampilkan di balkon besar dibentuk oleh atap dari menara yang lebih rendah; contoh kejujuran arsitektur yang menggambarkan karya Tange. Façade No.2 Building fitur pola yang sama dari granit dan beton sebagai tetangganya; dengan mempertahankan konsistensi gaya di kompleks Tange mampu membuat link visual antara komponen individu.
Gedung ketiga di kompleks adalah Gedung Majelis, struktur berbentuk setengah lingkaran delapan lantai yang duduk di kaki No.1. Sementara No.1 dan No.2 Bangunan terutama rumah kantor-kantor pemerintah, fungsi dari Gedung Majelis lebih spesifik: berfungsi sebagai ruang pertemuan untuk anggota dewan dari Tokyo . Kurva menyapu bangunan meliputi halaman luas yang tenggelam di bawah tingkat jalan, memisahkannya dari lalu lintas yang lewat jalan untuk membuat kliring tenang di mana konser terbuka, misalnya, dapat diselenggarakan.Sebagai bangunan memanjang ke arah barat, lengan menjadi jalan setapak tingkat tinggi dibesarkan di piloti.Lengan selatan memotong dengan sebuah jembatan yang membentang kesenjangan antara No.1 dan No.2, mengikat bersama tiga komponen kompleks melalui sistem sirkulasi pejalan kaki.




arsitektur Tange ditandai dengan interaksi antara tradisi dan modernitas; ia percaya bahwa "tugas yang paling penting saat ini adalah kreatif untuk meningkatkan baik masa lalu dan masa depan." [1] Banyak dari karya-karya awalnya bersandar berat pada tradisi arsitektur negeri asalnya dari Jepang - terutama jelas dalam desain untuk rumah sendiri dari tahun 1953. Namun, sementara dia mengakui pengaruh warisan Jepang, ia berulang kali berusaha untuk menjauhkan diri dari asosiasi murni sejarah. "Tradisi dapat dibandingkan dengan katalis;" ". Merangsang proses desain kami, tetapi hanya sebagai katalis menghilang setelah aksi kimiawi, sehingga tradisi tidak tinggal di dalam desain akhir" tulisnya, [2]
Dengan tahap akhir karirnya, referensi sejarah arsitektur dalam desain Tange telah menjadi kurang jelas, tapi tetap masih ada. Pada Tocho, pola geometris dari fasad mengingat panel layar rumah tradisional Jepang. Menara kembar No.1 Building, sementara itu, dapat dibandingkan dengan menara perpecahan katedral Gothic.




Sepanjang tulisan yang luas nya, Tange sering memuji kebaikan teknologi modern. Ini agak mengejutkan mengingat bahwa proyek selesai pertamanya, Hiroshima Peace Park , menjadi saksi potensi destruktif dari kecerdikan manusia. Namun demikian, desain Tange untuk Tocho langsung memanggil teknologi melalui desain;arsitek dikutip chip komputer sebagai inspirasi gaya untuk No.1 Building. [3] citra digital ini diulang dalam gedung, di mana motif sirkuit-board menghiasi beberapa langit-langit. [4]
Mengingat iklim ekonomi di Jepang pada saat itu, referensi untuk komputasi yang sangat tepat. Berkat industri teknologi terkemuka dunia-nya negara itu menikmati ledakan ekonomi dan chip komputer telah menjadi simbol nasional untuk yang modern Jepang . Tange bahkan meminjam retorika teknologi, mengutip Norbert Wiener (penemu cybernetics) saat menjelaskan desain arsitektur sendiri sebagai "ruang komunikasi" dihubungkan dengan "saluran informasi." [5] Dengan demikian, transfer orang melalui koridor dan elevator dari No.1 Building mengemulasi transfer informasi melalui sinyal listrik di komputer. Tidak hanya bangunan mempekerjakan ikonografi chip komputer, juga berfungsi sebagai salah satu.



pelukan Tange modernitas tidak, bagaimanapun, mencakup adopsi Eropa Modernisme; gaya yang dia sangat kritis. Meskipun ia mengagumi karya Le Corbusier, ia disdainfully mencatat bahwa bagi kebanyakan arsitek Modernis "kotak-yang putih belaka tidak lebih dari titik-itu sendiri merupakan tujuan awal yang benar." [6] Tange juga membawa masalah dengan fungsionalis yang sikap Gaya Internasional, yang ia lihat sebagai terlalu sederhana dan kaku: "kritik telah sering dilakukan oleh orang-orang yang tinggal dan bekerja di bangunan ini bahwa ini membatasi hidup mereka dan saya percaya keluhan mereka layak perhatian." [7]
Proses desain Tange sendiri melibatkan "typification fungsi," [8] dimana kebutuhan paling mendasar dari pengguna masa depan bangunan yang diprioritaskan dan kebutuhan lainnya, dianggap sewenang-wenang, diabaikan. Misalnya, skala besar (dan $ 1 miliar biaya) dari Tocho menyebabkan kemarahan publik selama konstruksi tetapi, seperti dibenarkan oleh manajer konstruksi proyek, "yang dibutuhkan untuk menjadi ukuran ini untuk rumah ganglia dari jaringan komputer besar dimaksudkan untuk membuat Tokyo pemerintah yang paling canggih di dunia. "[9]




Sementara Tange mungkin tidak berlangganan model Eropa Modernisme, dia berbagi tujuan gerakan untuk (pura-pura) menyapu lama dan membangun baru. Situs baru Tocho 's di Shinjuku-distrik lampu merah bersejarah Tokyo dan terkenal pusat Yakuza kegiatan-diberikan Tange kesempatan sempurna untuk melakukannya. Wilayah ini ditargetkan untuk regenerasi oleh anggota dewan kota pada tahun 1980, dan pembangunan Tocho menandai awal dari pembangunan kembali Shinjuku sebagai distrik keuangan modern.Meskipun lingkungan masih mempertahankan beberapa aspek dari masa lalu merusak kesehatan nya, transformasi menjadi pusat ekonomi berkembang telah sangat sukses. Dua puluh lima tahun setelah selesai Tocho, wilayah itu sekarang dipenuhi gedung pencakar langit yang rumah markas perusahaan nasional dan multinasional.
Ia telah mengemukakan bahwa kepercayaan Tange dalam kekuasaan regeneratif arsitektur berakar dalam siklus pertumbuhan dan peluruhan dijelaskan oleh ajaran Buddha. [10] Pembongkaran Metropolitan asli Tange Pemerintah Bangunan lama setelah pembukaan Tocho menyelesaikan proses siklus ini. Meskipun Tocho sering diabaikan dalam oeuvre arsitek, dalam banyak hal kompleks mencontohkan gaya melalui harmoni antara tradisi dan modernitas, fungsionalisme yang ditandai, dan kapasitasnya untuk mencerminkan identitas nasional.





Sumber   : 


http://www.archdaily.com/793703/ad-classics-tokyo-metropolitan-  

government-building-kenzo-tange/ 
                                                   http://dppka.jogjaprov.go.id/upload/files/e._bangunan_kantor_pemerintah_2015.pdf 
                           
                                                                                                                                                           

Selasa, 22 November 2016

Arsitektur Tropis

Pengertian Arsitektur Tropis

Arsitektur Tropis adalah suatu konsep bangunan yang mengadaptasi kondisi iklim tropis. Letak geografis Indonesia yang berada di garis khatulistiwa membuat Indonesia memiliki dua iklim, yakni kemarau dan penghujan. Pada musim kemarau suhu udara sangat tinggi dan sinar matahari memancar sangat panas. Dalam kondisi ikim yang panas inilah muncul ide untuk menyesuaikannya dengan arsitektur bangunan gedung maupun rumah yang dapat memberikan kenyamanan bagi penghuninya.


·      Iklim Tropis

Climate (iklim) berasal dari bahasa Yunani, klima yang berdasarkan kamus Oxford berarti region (daerah) dengan kondisi tertentu dari suhu dryness (kekeringan), angin, cahaya dan sebagainya. Dalam pengertian ilmiah, iklim adalah integrasi pada suatu waktu (integration in time) dari kondisi fisik lingkungan atmosfir, yang menjadi karakteristik kondisi geografis kawasan tertentu”. Sedangkan cuaca adalah “kondisi sementara lingkungan atmosfer pada suatu kawasan tertentu”. Secara keseluruhan, iklim diartikan sebagai “integrasi dalam suatu waktu mengenai keadaan cuaca” (Koenigsberger, 1975:3).
Kata tropis berasal dari bahasa Yunani kuno, yaitu kata tropikos yang berarti garis balik, kini pengertian ini berlaku untuk daerah antara kedua garis balik ini. Garis balik ini adalah garis lintan 23027” utara dan garis lintan 23027 selatan.
            Iklim tropis adalah iklim dimana panas merupakan masalah yang dominan yang pada hampir keseluruhan waktu dalam satu tahun bangunan “bertugas” mendinginkan pemakai, dari pada menghangatkan dan suhu rata-rata pertahun tidak kurang dari 200C (Koenigsberger. 1975:3). Menurut Lippsmiere, iklim tropis Indonesia mempunyai kelembaban relatif (RH) yang sangat tinggi (kadang-kadang mencapai 90%), curah hujan yang cukup banyak, dan rata-rata suhu tahunan umumnya berkisar 230C dan dapat naik sampai 380C pada musim “panas”.
            Pada iklim ini terjadi sedikit sekali perubahan “musim” dalam satu tahun, satu-satunya tanda terjadi pergantian musim adalah banyak atau sedikitnya hujan, dan terjadinya angin besar. Karakteristik warm humid climate (iklim panas lembab) adalah sebagai berikut (Lippsmiere. 1980:28) :
• Landscap, rain forest (hutan hujan) terdapat sepanjang pesisir pantai dan dataran rendah daerah ekuator.
• Kondisi tanah, merupakan tanah merah atau coklat yang tertutup rumput.
• Tumbuhan, zona ini tumbuhan sangat bervariasi dan lebat sepanjang tahun.Tumbuhan tumbuh dengan cepat karena pengaruh curah hujan yang tinggi dan suhu udara yang panas.
• Musim. Terjadi sedikit perbedaan musim. Pada bulan “panas” kondisi panas dan lembab sampai basah. Pada belahan utara, bulan “dingin” terjadi pada Desember-Januari, bulan”panas” terjadi pada Mei sampai Agustus. Pada belahan selatan bulan “dingin” terjadi pada April sampai Juli, bulan “panas” terjadi pada Oktober sampai Februari.
• Kondisi langit, hampir sepanjang tahun keadaan langit berawan. Lingkungan awan berkisar 60%-90%. Luminance (lumansi) maksimal bisa mencapai 7000 cd/m2 sedangkan luminasi minimal 850cd/m2.
• Radiasi dan panas matahari, pada daerah tropis radiasi matahari dikategorikan tinggi. Sebagian dipantulkan dan sebagian disebarkan oleh selimut awan,meskipun demikian sebagian radiasi yang mencapai permukaan bumi mempunyai dampak yang besar dalam mempengaruhi suhu udara.
• Temperatur udara, terjad fluktuasi perbedaan temperatur harian dan tahunan.Rata-rata temperatur maksimum tahunan adalah 30,50C. temperatur rata-rata tahunan untuk malam hari adalah 250C tetapi umumnya berkisar antara 21-270C. sedangkan selama siang hari berkisar 27-320c. kadang-kadang lebih dari 320C.
• Curah hujan sangat tinggi selama satu tahun, umumnya menjadi sangat tinggi dalam beberapa tahun tertentu. Tinggi curah hujan tahunan berkisar antara 2000-5000 mm, pada musim hujan dapat bertambah. Sampai 500 mm dalam sebulan. Bahkan pada saat badai bisa mencapai 100 mm per jam.
• Kelembaban, dikenal sebagai RH (Relative humidity), umumnya rata-rata tingkat kelembaban adalah sekitar 75%, tetapi kisaran kelembabannya adalah 55% sampai hampir 100%. Absolute humidity antara 25-30 mb.
• Pergerakan udara, umumnya kecepatan angin rendah, tetapi angin kencang dapat terjadi selama musim hujan. Arah angin biasanya hanya satu atau dua.
• Karakteristik khusus, tingginya kelembaban mempercepat pertumbuhan alga dan lumut, bahan bangunan organik membusuk dengan cepat dan banyaknya serangga. Evaporasi tubuh terjadi dalam jumlah kecil karena tingginya kelembaban dan kurangnya pergerakan udara (angin). Rata-rata badai adalah 120-140 kali dalam satu tahun.
            Daerah dengan iklim tropis didunia terdiri 2 jenis, yaitu daerah dengan iklim tropis kering, sebagai contoh adalah di negara-negara Timur Tengah, Meksiko, dan sekitarnya, serta daerah dengan iklim tropis lembab, yang terdapat pada sebagian besar negara-negara di Asia, termasuk Indonesia, walaupun untuk beberapa daerah di Indonesia, misalnya beberapa bagian pulau Nusa Tenggara mengarah pada kondisi tropis kering,
  • Arsitektur Tropis Kering 
1.Ciri-ciri iklim tropis kering:
-Kelembaban rendah
-Curah hujan rendah
-Radiasi panas langsung tinggi
-Suhu udara pada siang hari tinggi dan pada malam hari rendah (45o dan -10oCelcius)
-Jumlah radiasi maksimal, karena tidak ada awan.
-Pada malam hari berbalik dingin karena radiasi balik bumi cepat berlangsung (cepat dingin bila dibandingkan tanah basah/lembab).
-Menjelang pagi udara dan tanah benar-benar dingin karena radiasi balik sudah habis. Pada siang hari radiasi panas tinggi dan akumulasi radiasi tertinggi pukul 15.00. Sering terjadi badai angin pasir karena dataran yang luas.
-Pada waktu sore hari sering terdengar suara ledakan batu-batuan karena perubahan suhu yang tiba-tiba drastis.
Di daerah benua atau daratan yang cukup luas, banyak terdapat gurun pasir karena di tempat itu jarang terjadi hujan, bahkan dapat dikatakan tidak terjadi sama sekali, karena angin yang melaluinya sangat kering, tidak mengandung uap air. Uap air yang terkandung di udara sudah habis dalam perjalanan menuju ke pedalaman benua itu, atau juga karena terhalang oleh daratan tinggi atau gunung, sehingga daerah itu menjadi sangat panas dan tidak ada filter pada tanah dari sengatan sinar matahari, yang mengakibatkan bebatuan hancur menjadi pasir. Suhu di padang pasir dapat mencapai 50o C hingga 60C di siang hari, dan di malam hari dapat mencapai -1o C.

2.Strategi untuk perancangan bangunan:
-Mempergunakan bahan-bahan dengan time lag tinggi agar panas yang diterima siang hari dapat menghangatkan ruangan di malam hari. Konduktivitas rendah agar panas siang hari tidak langsung masuk ke dalam bangunan. Berat jenis bahan tinggi, dimensi tebal agar kapasitas menyimpan panas tinggi.
-Bukaan-bukaan dinding kecil untuk mencegah radiasi sinar langsung dan angin atau debu kering masuk sehingga mempertahankan kelembaban.
-Memperkecil bidang tangkapan sinar matahari dengan atap-atap datar dan rumah-rumah kecil berdekatan satu sama lain saling membayangi, jalan-jalan sempit selalu terbayang. Atap datar juga untuk menghindari angin kencang, karena curah hujan rendah.
-Menambah kelembaban ruang dalam dengan air mancur yang dibawa angin sejuk.
-Pola pemukiman rapat dan jalan yang berbelok untuk memotong arus angin
-Bangunan efisien bila rendah, masif dan padat.
  • Arsitektur Tropis Lembab
1.      Ciri Iklim Tropis Lembab:

DR. Ir. RM. Sugiyanto, mengatakan bahwa ciri-ciri dari iklim tropis lembab sebagaimana yang ada di Indonesia adalah “kelembaban udara yang tinggi dan temperatur udara yang relatif panas sepanjang tahun”. Kelembaban udara rata-rata adalah sekitar 80% akan mencapai maksimum sekitar pukul 06.00 dengan minimum sekitar pukul 14.00. Kelembaban ini hampir sama untuk dataran rendah maupun dataran tinggi.Daerah pantai dan dataran rendah temperatur maksimum rata-rata 320C.makin tinggi letak suatu tempat dari muka laut, maka semakin berkurang temperatur udaranya. Yaitu berkurang rata-rata 0,60C untuk setiap kenaikan 100 m. ciri lainnya adalah curah hujan yang tinggi dengan rata-rata sekitar 1500- 2500 mm setahun. Radiasi matahari global horisontak rata-rata harian adalah sekitar 400 watt/m2 dan tidak banyak berbeda sepanjang tahun, keadaan langit pada umumnya selalu berawan. Pada keadaan awan tipis menutupi langit, luminasi langit dapat mencapai 15.00 kandela/m2.Tinggi penerangan rata-rata yang dihasilkan menurut pengukuran yang pernah dilakukan di Bandung untuk tingkat penerangan global horizontal dapat mencapai 60.000 lux. Sedangkan tingkat penerangan dari cahaya langit saja, tanpa cahaya matahari langsung dapat mencapai 20.000 lux dan tingkat penerangan minimum antara 08.00 – 16.00 adalah 10.000 lux. Iklim tropis lembab dilandasi dengan perbedaan suhu udara yang kecil antara siang hari dan malam hari, kelembaban udara yang tinggi pada waktu tengah malam serta cukup rendah pada waktu tengah hari. Kecepatan angin ratarata pada waktu siang hari dapat digambarkan sebagai memadai untuk kenyamanan, yaitu sekitar 1.0 m/det. Pada waktu musim hujan yaitu sekitar 2.0 m/det. Pada waktu musim panas akan memberikan gambaran tersendiri mengenai upaya pencapaian pendinginan pasif bangunan. Sekalipun terdapat kondisi yang luar batas kenyamanan thermal manusia, sebenarnya terdapat potensi iklim natural yang dapat mewujudkan terciptanya kenyamanan dengan strategi lain. Kenyamanan tersebut tercapai dengan interaksi antar fungsi iklim dengan lingkungan maupun dengan pemanfaatan teknologi.

2.      Kriteria Perencanaan pada Iklim Tropis Lembab

Kondisi iklim tropis lembab memerlukan syarat-syarat khusus dalam perancangan bangunan dan lingkungan binaan, mengingat ada beberapa factor-faktor spesifik yang hanya dijumpai secara khusus pada iklim tersebut, sehingga teori-teori arsitektur, komposisi, bentuk, fungsi bangunan, citra bangunan dan nilai-nilai estetika bangunan yang terbentuk akan sangat berbeda dengan kondisi yang ada di wilayah lain yang berbeda kondisi iklimnya. Menurut DR. Ir. RM. Sugiyatmo, kondisi yang berpengaruh dalam perancangan bangunan pada iklim tropis lembab adalah, yaitu :

1. Kenyamanan Thermal

Kenyamanan thermal adalah suatu kondisi thermal yang dirasakan oleh manusia bukan oleh benda, binatang, dan arsitektur, tetapi dikondisikan oleh lingkungan dan benda-benda di sekitar arsitekturnya.
 -Kriteria dan Prinsip Kenyamanan Thermal
Standar internasional mengenai kenyamanan thermal ( suhu) “ISO 7730 : 1994”
”menyatakan bahwa sensasi thermal yang di alami manusia merupakan fungsi dari 4 faktor iklim yaitu: suhu udara, radiasi, kelembaban udara, kecepatan angin, serta faktor-faktor individu yang berkaitan dengan laju metabolisme tubuh, serta pakaian yang di gunakan.”
Untuk mencapai kenyamanan thermal haruslah di mulai dari Kualitas udara di sekitar kita yang harus memiliki kriteria :

· Udara di sekitar rumah tinggal tidak mengandung pencemaran yang berasal dari asap sisa pembakaran sampah, BBM, sampah industru, debu dan sebagainya.

· Udara tidak berbau, terutama bau badan dan bau dari asap rokok yang merupakan masalah tersendiri karena mengandung berbagai cemaran kimiawi walaupun dalam variable proporsi yang sedikit.

Prinsip dari pada kenyamanan thermal sendiri adalah, teciptanya keseimbangan antara suhu tubuh manusia dengan suhu tubuh sekitarnya. Karen jika suhu tubuh manusia dengan lingkungannya memiliki perbedaan suhu yang signifikan maka akan terjadi ketidak nyamanan yang di wujudkan melalui kepanasan atau kedinginan yang di alami oleh tubuhUsaha untuk mendapatkan kenyamana thermal terutama adalah mengurangi perolehan panas, memberikan aliran udara yang cukup dan membawa panas keluar bangunan serta mencegah radiasi panas, baik radiasi langsung matahari maupun dari permukaan dalam yang panas. Perolehan panas dapat dikurangi dengan menggunakan bahan atau material yang mempunyai tahan panas yang besar, sehingga laju aliran panas yang menembus bahan tersebut akan terhambat. Permukaan yang paling besar menerima panas adalah atap. Sedangkan bahan atap umumnya mempunyai tahanan panas dan kapasitas panas yang lebih kecil dari dinding. Untuk mempercepat kapasitas panas dari bagian atas agak
sulit karena akan memperberat atap. Tahan panas dari bagian atas bangunan dapat diperbesar dengan beberapa cara, misalnya rongga langit-langit, penggunaan pemantul panas reflektif juga akan memperbesar tahan panas. Cara lain untuk memperkecil panas yang masuk antara lain yaitu:

A. Memperkecil luas permukaan yang menghadap ke timur dan barat.
B. Melindungi dinding dengan alat peneduh.

Perolehan panas dapat juga dikurangi dengan memperkecil penyerapan panas dari permukaan, terutama untuk permukaan atap. Warna terang mempunyai penyerapan radiasi matahari yang kecil sedang warna gelap adalah sebaliknya. Penyerapan panas yang besar akan menyebabkan temperature permukaan naik. Sehingga akan jauh lebih besar dari temperatur udara luar. Hal ini menyebabkan perbedaan temperatur yang besar antara kedua permukaan bahan, yang akan menyebabkan aliran panas yang besar.

2. Aliran Udara Melalui Bangunan

-Sirkulasi Udara
Prinsip upaya perancangan bangunan pada daerah beriklim tropis yang benar harus mempertimbangkan pemanfaatan sebanyak mungkin kondisi alam, diantaranya adalah pengupayaan pemikiran penghawaan alami untuk memenuhi kebutuhan udara dan kelancaran sirkulasi udara pada bangunan tersebut.
Brown (1987:123) menyebutkan bahwa prinsip terjadinya aliran udara adalah, mengalirnya udara dari daerah bertekanan tinggi kearah daerah yang bertekanan rendah. Perbedaan tekanan udara terjadi karena adanya perbedaan temperatur pada masing-masing daerah tersebut, dimana secara horizontal akan menimbulkan perbedaan tekanan dan secara vertikal akan menimbulkan perbedaan berat jenis.
Dalam upaya pemanfaatan penghawaan alami, perlu diperhatikan bahwa pengaliran udara yang perlahan-lahan namun kontinyu sangat mutlak diperlukan, agar udara didalam ruangan selalu diganti dengan udara yang bersih, sehat, segar dan terasa nyaman. Pada kegiatan rumah tinggal, pergantian udara bisa dikatakan baik apabila udara didalam ruangan dapat selalu berganti sebanyak 15 m3/orang/jam, semakin kecil ukuran ruang, maka frekuensi pergantian udara harus semakin sering.
Keterlambatan atau kekurangan volume pergantian udara didalam ruang akan meningkatkan derajat kelembaban ruang, yang akan menimbulkan perasaan tidak nyaman, disamping itu udara kotor sisa gas buang yang tidak secepatnya tersalur keluar akan sangat merugikan kesehatan pemakai ruang. Sebagai pedoman, suatu ruang akan terasa nyaman untuk tubuh apabila kelembaban didalam ruang tersebut berkisar antara 40 – 60%. Pada ruang-ruang yang jarang terkena pengaruh panas sinar matahari, maka pengendalian kelembaban sangat ditentukan oleh kelancaran sirkulasi udara yang mengalir didalam ruang tersebut.
Kelembaban tinggi, disamping disebabkan oleh kurang lancarnya sirkulasi udara didalam ruang dan kurangnya pengaruh sinar matahari, juga disebabkan oleh faktor-faktor:
·      Air hujan:
Akibat merembesnya air hujan dari luar dinding kedalam dinding bangunan,
Akibat merembesnya air hujan yang disebabkan oleh sistem talang air hujan yang tidak benar, misalnya talang datar yang teletak diatas dinding memanjang,
Penyusupan air hujan melalui sela daun pintu, jendela dan lain-lain yang tidak rapat sempurna dan masih terkena tampias air hujan.
·         Kondisi air tanah
Akibat merembesnya air dari tanah melalui pondasi dan dinding ke lantai secara kapilerisasi.
Dengan demikian pemecahan teknis akibat adanya kelembaban tinggi secara rinci juga tergantung dari penyebab utama timbulnya hal tersebut.
-Sirkulasi Udara Dengan Sistem Ventilasi Horisontal

Perancangan tata ruang yang benar harus dengan memperhatikan kelancaran sirkulasi atau pengaliran udara yang dapat melalui seluruh ruang-ruang yang dirancang. Kelancaran aliran/ sirkulasi udara pada suatu susunan ruang bisa diperoleh dengan:
Membuat lubang-lubang ventilasi pada bidang-bidang yang saling berseberangan (cross ventilation),
Memanfaatkan perbedaan suhu pada masing-masing ruang, karena udara akan mengalir dari daerah dengan suhu rendah (yang mempunyai tekanan tinggi) kedaerah dengan suhu tinggi (yang mempunyai tekanan rendah).
Dengan memperhatikan dua hal diatas, dalam perancangan tata ruang, perlu dipikirkan 1). Spesifikasi arah angin dominan pada suatu lokasi dimana bangunan akan didirikan, dan  2). Dengan memperhitungkan perancangan tata ruang yang dapat menghasilkan ruang dengan kondisi suhu ruang yang bervariasi, untuk mengarahkan dan memperlancar sirkulasi udara ruang, yaitu dengan upaya pengolahan pelubangan-pelubangan yang berbeda-beda.
Pada kasus-kasus tertentu dapat terjadi, angin yang datang masuk ke ruangan ternyata terlalu kencang, sehingga justru menimbulkan perasaan yang tidak nyaman. Untuk mengatasi hal ini perlu dipikirkan dan diupayakan adanya semacam louvre atau kisi-kisi yang dipasang pada lubang tersebut. Kisi-kisi tersebut berfungsi sebagai sarana untuk membelokkan dan memperlambat kecepatan angin yang masuk ruangan, sehingga ruangan bisa terasa nyaman. Brown (1987:87) menyatakan bahwa dengan dipasangnya louvre atau kisi-kisi tersebut, dapat mengurangi kecepatan angin dari 9 - 40 km/jam menjadi 5 – 7,5 km/jam. 
-Sirkulasi Udara Dengan Sistem Ventilasi Vertikal

Mangunwijaya (1980:153) menyebutkan bahwa prinsip perancangan ventilasi vertikal adalah berdasarkan suatu teori bahwa udara kotor dan kering akan selalu mengalir keatas secara alamiah, sedangkan udara segar  dengan berat jenis yang lebih besar akan selalu mengalir kebawah atau selalu mendekati lantai.
Prinsip diatas harus diperhatikan dalam upaya perancangan tata ruang, sehingga pembuangan udara kotor keluar ruangan dan suplai udara segar ke dalam ruangan dapat terpenuhi.
Penerapan prinsip-prinsip tersebut pada perancangan fisik ruang mencakup:
Pelubangan dan atau kisi-kisi pada langit-langit, yang memungkinkan udara kotor dan kering bisa menerobos keluar ruangan secara vertikal,
Adanya pori-pori pada atap, aplikasinya pada susunan genting yang masih mempunyai sela-sela.
Penerapan “skylight”,yaitu upaya memanfaatkan sinar matahari dengan sistem pencahayaan dari atap, yang dikombinasikan dengan lubang-lubang ventilasi vertikal pada daerah tersebut, dengan demikian panas akibat adanya radiasi sinar matahari dari skylight bisa berfungsi sebagai penyedot udara, hal ini disebabkan didaerah tersebut terjadi tekanan udara rendah akibat timbulnya kenaikan suhu udara,
Mangunwijaya juga menyebutkan bahwa, perencanaan penghawaan alami pada perencanaan bangunan akan lebih efektif apabila merupakan penggabungan antara sistem ventilasi horisontal dengan sistem ventilasi vertikal, karena kedua sistem tersebut akan saling menunjang. Berdasarkan penelitian, upaya tersebut ternyata bisa menaikkan tingkat keberhasilan 10% dibandingkan apabila sistem tersebut diterapkan secara terpisah.
Kegunaan dari aliran udara atau ventilasi adalah :

A. Untuk memenuhi kebutuhan kesehatan yaitu penyediaan oksigen untuk pernafasan, membawa asap dan uap air keluar ruangan, mengurangi konsentrasi gas-gas dan bakteri serta menghilangkan bau.

B. Untuk memenuhi kebutuhan kenyamanan thermal, mengeluarkan panas, membantu mendinginkan bagian dalam bangunan.

Aliran udara terjadi karena adanya gaya thermal yaitu terdapat perbedaan temperatur antara udara di dalam dan diluar ruangan dan perbedaan tinggi antara lubang ventilasi. Kedua gaya ini dapat dimanfaatkan sebaikbaiknya untuk mendapatkan jumlah aliran udara yang dikehendaki. Jumlah aliran udara dapat memenuhi kebutuhan kesehatan pada umumnya lebih kecil daripada yang diperlukan untuk memenuhi kenyamanan thermal. Untuk yang pertama sebaiknya digunakan lubang ventilasi tetap yang selalu terbuka. Untuk memenuhi yang kedua, sebaiknya digunakan lubang ventilasi yang bukaannya dapat diatur.

3. Penerangan Alami pada Siang Hari

Di Indonesia seharusnya dapat dimanfaatkan sebaik-baiknya cahaya ini untuk penerangan siang hari di dalam bangunan. Tetapi untuk maksud ini, cahaya matahari langsung tidak dikehendaki masuk ke dalam bangunan karena akan menimbulkan pemanasan dan penyilauan, kecuali sinar matahari pada pagi hari. Cahaya langit yang sampai pada bidang kerja dapat dibagi dalam 3 (tiga) komponen :
A. Komponen langit.
B. Komponen refleksi luar
C. Komponen refleksi dalam
Dari ketiga komponen tersebut komponen langit memberikan bagian terbesar pada tingkat penerangan yang dihasilkan oleh suatu lubang cahaya. Faktor-faktor yang mempengaruhi besarnya tingkat penerangan pada bidang kerja tersebut adalah :
A. Luas dan posisi lubang cahaya.
B. Lebar teritis
C. Penghalang yang ada dimuka lubang cahaya
D. Faktor refleksi cahaya dari permukaan dalam dari ruangan.
E. Permukaan di luar bangunan di sekitar lubang cahaya.

·         Pemanfaatan Sinar Matahari
Secara umum sinar matahari yang masuk kedalam ruangan bisa dibedakan dalam beberapa jenis:
1.   Sinar Matahari Langsung, yang masuk kedalam ruang tanpa terhalang oleh apapun,
2.   Sinar matahari yang berasal dari pantulan awan, Untuk  nomor 1 dan 2 biasa disebut sinar langit.
3.   Sinar matahari refleksi luar, yaitu sinar matahari hasil pantulan (refleksi) cahaya dari benda-benda yang berada diluar bangunan, dan masuk kedalam ruangan melalui lubang-lubang cahaya. Termasuk disini adalah sinar matahari yang terpantul dari tanah, perkerasan halaman, rumput, pohon yang selanjutnya terpantul kebidang kerja didalam ruangan (bidang kerja adalah suatu bidang khayal atau anggapan, setinggi 75 cm dari lantai, yang dipergunakan sebagai titik tolak perhitungan penyinaran).
4.   Sinar matahari refleksi dalam, yaitu sinar matahari pantulan cahaya dari benda-benda atau elemen-elemen didalam ruang itu sendiri.
      Sinar matahari yang bermanfaat karena terangnya, juga akan mendatangkan panas, atau setidak-tidaknya akan menaikkan suhu ruang, dengan demikian perlu diperhatikan kenyataan:
1). Bahwa gangguan sinar matahari datang dari silau sinarnya, dan kemudian sengatan    panasnya,
2).  Sinar matahari disamping memberi terang juga memberi panas.
Dari kedua kenyataan diatas, perlu diambil langkah-langkah dalam upaya perancangan tata ruang sebagai berikut:
·      o Dalam memanfaatkan sinar matahari, seoptimal mungkin kita memanfaatkan sinarnya, namun sekaligus mengupayakan langkah-langkah untuk bisa mengurangi panas yang timbul,
·      o Dalam memanfaatkan potensi sinar matahari, kita tidak mengupayakan cahaya langsung, tapi cukup cahaya pantulan atau cahaya bias.
·      o  Untuk mendapatkan cahaya pantul/bias, lubang cahaya harus diletakkan didaerah bayang-bayang.
·      o Pemanfaatan cahaya langsung didalam ruang biasanya hanya dipergunakan pada suatu kasus atau keadaan khusus, yang memerlukan suatu effek arsitektural khusus, kesan aksentuasi, atau untuk suatu fungsi-fungsi tertentu saja.
Menurut Dirjend Cipta Karya, (1987:12), disebutkan bahwa standard minimal lubang cahaya untuk ruang-ruang kegiatan sehari-hari adalah 1/8-1/10 dari luas lantai. Dalam ungkapan fisik, biasanya disain lubang cahaya merupakan pemikiran yang tidak terpisahkan dari disain lubang ventilasi, dengan demikian rincian bentuk maupun perletakannya perlu dijabarkan lagi dengan lebih detail dengan mempertimbangkan kedua aspek tersebut.

Derajat / tingkat Penyinaran.

Dalam kegiatan perancangan bangunan, upaya pemikiran pemanfaatan sinar matahari perlu memperhitungkan 3 faktor yang akan mempengaruhi derajat/tingkat penyinaran suatu ruang, yaitu:
·    o  Ketinggian lubang cahaya
Yang dimaksud ketinggian lubang cahaya adalah jarak vertikal yang diperhitungkan dari bidang kerja kearah ambang atas maupun ambang bawah lubang cahaya.
o Lebar Lubang Cahaya
Lebar lubang cahaya merupakan dimensi horizontal dari lubang cahaya tersebut.
·   o Kedalaman ruang 
Kedalaman ruang adalah jarak batas ruang terluar dengan batas datang sinar (misalkan: panjang oversteck dimuka ruang).
Berkaitan dengan ketiga faktor tersebut, menurut Soetiadji, (1986;23), ternyata terdapat kaitan antara ketinggian lubang cahaya dengan tingkat/derajat penyinaran pada ruangan berdasarkan tabel dibawah ini:



KETINGGIAN LUBANG CAHAYA
DERAJAT/TINGKAT PENYINARAN
JENDELA SATU SISI
JENDELA DUA SISI
1.      Dikurangi 15 %
2.      Dikurangi 30 %
3.      Dikurangi 40 %
Turun 19 %
Turun 38 %
Turun 63 %
Turun   9,5 %
Turun 25    %
Turun 44    %

Menurut Soetiadji, lebar lubang cahaya juga memberi pengaruh pada derajat/tingkat penyinaran sesuai tabel dibawah ini:

LEBAR LUBANG CAHAYA
DERAJAT/TINGKAT PENYINARAN
1.      Dikurangi 22 %
2.      Dikurangi 50 %
Turun   7 %
Turun 25 %

Dari tabel diatas, dapat dinyatakan bahwa ketinggian lubang cahaya ternyata lebih berperan dalam menentukan derajat/tingkat penyinaran ruang dibandingkan dengan kelebaran (dimensi horisontal) lubang cahaya.
Ungkapan diatas bisa dijabarkan lebih jelas sebagai berikut:
  1. Bahwa walaupun lubang cahaya sudah cukup lebar, namun apabila ketinggian lubang    tersebut kurang memenuhi syarat, tidak akan menghasilkan tingkat penyinaran ruang yang efektif.
  2. Makin tinggi lubang cahaya, akan makin efektif tingkat penyinaran yang dihasilkan pada suatu ruang.
Sedangkan pengaruh antara panjang/lebar oversteck dimuka lubang cahaya terhadap derajat/tingkat penyinaran didalam ruang adalah sebagai berikut:


PANJANG OVERSTECK
DERAJAT/TINGKAT PENYINARAN
SISI DEKAT
SISI JAUH
1.        60,00 CM
2.      120,00 CM
3.      180,00 CM
.
Turun 14 %
Turun 24 %
Turun 39 %
Turun   7,5 %
Turun 15    %
Turun 22    %

Dari tabel tersebut bisa dinyatakan bahwa oversteck dimuka lubang cahaya sangat mempengaruhi derajat/tingkat penyinaran pada suatu ruang, dengan demikian perlu perhitungan yang matang dalam perencanaan oversteck diatas/dimuka lubang cahaya, supaya tidak merugikan kwalitas penyinaran pada ruang tersebut

 4. Radiasi Panas Sinar Matahari.
Disamping memancarkan sinar/cahaya, matahari juga akan mengeluarkan panas. Panas inilah yang harus ditanggulangi dalam upaya perancangan bangunan, setidak-tidaknya dikurangi sehingga suhu ruangan bisa sesuai dengan yang diharapkan.
Beberapa pemikiran perancangan ruang sebagai upaya untuk mengurangi efek panas yang disebabkan oleh radiasi panas sinar matahari adalah berdasarkan suatu prinsip memasang lubang cahaya didaerah bayang-bayang/bias cahaya matahari.
Aplikasinya dalam ungkapan fisik sebagai berikut:
1. Memasang tabir sinar matahari pada bagian luar ruang/lubang cahaya. Cara ini bisa mereduksi radiasi panas sebesar 90 – 95 %
2. Memasang tabir sinar matahari dibagian dalam ruang/lubang cahaya. Cara ini dapat mereduksi radiasi panas sinar matahari sebesar 60 – 70 %
Tabir sinar matahari bisa berupa tabir horisontal (horizontal blind), atau tabir sinar matahari vertikal (vertical blind), yang pemasangannya bisa dengan cara pemasangan dengan bentuk permanen, atau yang bersifat adjustable/moveable, yang bisa diatur sesuai kebutuhan.
Pada penerapannya dalam ungkapan fisik, fungsi tabir sinar matahari bisa berfungsi ganda, yaitu disamping sebagai sarana untuk mereduksi radiasi panas sinar matahari, juga sebagai sarana pengatur derajat/tingkat penyinaran ruang, dengan demikian sebaiknya tabir sinar matahari tersebut diberi warna yang terang/cerah untuk dapat memberi effek bias yang maksimal.

Ciri Desain Arsitektur Tropis
Desain arsitektur tropis merupakan gaya bangunan yang sesuai dengan lingkungan di wilayah tropis. Gaya ini memiliki beberapa ciri-ciri khas yang menjadikannya terlihat identik dan mampu menjadi pilihan untuk hunian yang nyaman.




Gaya ini umumnya memiliki ciri-ciri:
· Mempunyai atap yang tinggi dengan kemiringan diatas 30 derajat. Ruang di bawah atap berguna untuk meredam panas.
· Mempunyai teritisan/overstek atap yang cukup lebar untuk mengurangi efek tampias dari hujan yang disertai angin. Selain itu, uga untuk menahan sinar matahari langsung yang masuk ke dalam bangunan.
· Mempunyai lubang untuk ventilasi udara secara silang, sehingga suhu di dalam ruangan bisa tetap nyaman.
· Pada daerah tertentu, rumah panggung menjadi ciri utama yang kuat untuk antisipasi bencana alam dan ancaman binatang buas.
· Desain tropis umumnya menggunakan material alam yang sumbernya bisa didapat di sekitarnya.

Fish House

Desain: Guz Arsitek
bungalow modern tropis ini merangkum esensi hidup di iklim panas dan lembab dari Singapura dengan menciptakan ruang terbuka yang mendorong ventilasi alami dan menawarkan warga pemandangan ke laut.








   
Konsep desain utama adalah untuk menciptakan sebuah rumah yang memiliki hubungan dekat dengan alam dan ini dicapai dengan memiliki kolam renang yang menghubungkan rumah dengan pemandangan dan akhirnya visual yang koneksi dengan laut. Ide koneksi diperkuat dengan memiliki basement level media-room dengan bentuk U pada jendela akrilik yang memungkinkan cahaya alami menyebar dan juga memandang keluar ke kolam renang.





   
Atap melengkung, yang melambangkan gelombang laut, juga menekankan gagasan laut di dekatnya. Ini hampir benar-benar tertutup dengan panel fotovoltaik ditekuk tipis memasok energi yang cukup untuk rumah, sementara sisanya digunakan sebagai atap hijau memberikan warga beberapa ruang rekreasi.
   





Fish House adalah desain perumahan sederhana namun mewah yang memberikan pengunjung kesempatan untuk hidup dalam harmoni dan nyaman dengan alam.

Fish House Singapore – Building Information

Area: 726 sqm
Gross fFoor Area: 540 sqm
Photos: Patrick Bingham Hall
Design Architect: Guz Wilkinson
Project Architect: Caroline Witzke
Collaborators:
C&S Engineers: MSE Engineers
M&E Engineers: Herizal Fitri Consultants
Completed: 2009
Software: AutoCAD





Berikut cuplikan video mengenai Fish House Luxury Bungalow



 Sumber   :

http://cv-yufakaryamandiri.blogspot.co.id/2012/10/pengertian-dan-konsep-arsitektur-tropis.html
http://edupaint.com/warna/ragam-warna/5899-ciri-desain-arsitektur-tropis.html
http://www.e-architect.co.uk/singapore/fish-house